普通河川井ノ川護岸改修工事

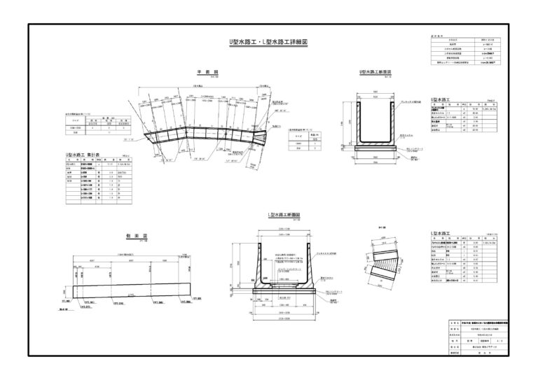
製品名称:自在水路,L型水路

製品規格:TFC-150×200CF,NSL-200

施工年月日:2022年12月~2023年2月施工

地域:三重県

施工場所:三重県度会町

発注機関:度会町役場

路線名等:三重県度会町

CORINS登録No:

工事概要:

施工状況

施工写真①

施工写真②

U型水路工・L型水路工詳細図